£4,150 PCM

Brook Lane, Alderley Edge, Cheshire

4 4 3

A fantastic high specification four double bedroom, three bathroom townhouse within this secure gated development, with parking for up to four vehicles and within walking distance to Alderley Edge village centre.

A fantastic high specification four double bedroom, three bathroom townhouse with secure gated development, with parking for up to four vehicles and within walking distance to Alderley Edge village centre.

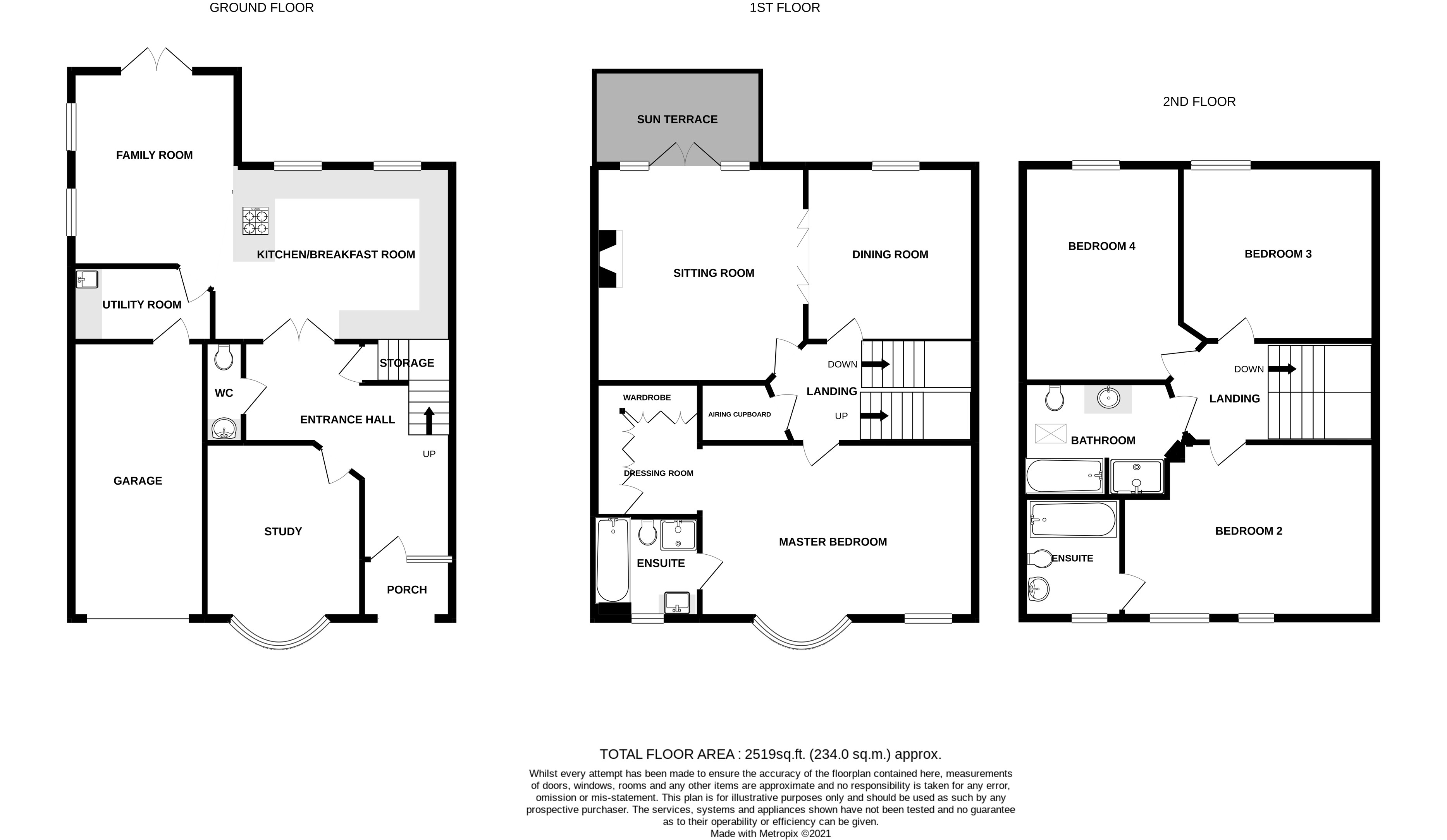
Oak Bank is set in an exclusive gated development of a select number of townhouses and luxurious apartments, with high quality fittings. The accommodation in brief comprises of to the ground floor; storm porch, entrance hall, study, WC, open plan kitchen breakfast family room, utility room and integral garage. To the first floor you will find the sitting room with doors to the sun terrace and dining room, master bedroom with dressing area and ensuite bathroom.

To the second floor there are three further double bedrooms, one with ensuite bathroom and further family bathroom. The property benefits from under floor heating throughout and solid oak flooring throughout the ground floor.

Externally the property is approached through wrought iron electric gates, a block paved driveway and a flagstone pathway leading to the front door. The rear garden benefits from South and Westerly sun, is mainly laid with artificial grass for ease of use and low maintenance.


Room Dimensions

Ground Floor

Storm Porch

Natural oak panelled front door with glazed panel to side opening to

Entrance Hall

Ceiling cornice, down lights, , entry video phone system, power points, oak flooring with under floor heating, under stairs storage cupboard, stairs to first floor with oak banister and oak glazed/panelled doors off to;

Cloakroom

Low level WC, wash hand basin set on vanity unit, chrome ladder style towel radiator, ceiling cornice, down lights, extractor fan, half tiled walls and oak flooring with under floor heating.

Study

3.72m x 3.31m (12' 2" x 10' 10"): Double glazed bay window to the front, ceiling cornice, ceiling speak, down lights, telephone point, TV aerial point, power points and oak wood flooring with under floor heating.

Open Plan Kitchen Breakfast Family Room

Kitchen Breakfast Room

4.55m x 3.78m (14' 11" x 12' 5"): Double glazed windows to the rear, a high specification contemporary kitchen with a range of wall and base units with granite work surface over to upstand and breakfast bar incorporated, inset stainless steel one and a half bowl sink unit with spray tap over, waste disposal and drainer grooves in granite. Integrated ‘Miele’ appliances comprising of 5 ring gas hob with extractor hood over, two fan assisted ovens, two plate warming drawers, steam oven, combination microwave, larder fridge and freezer, coffee machine and dishwasher. Power points, down lights, ceiling speakers, oak wood flooring with under floor heating opening to;

Family Room

4.12m x 3.96m minimum (13' 6" x 13' 0" minimum): Double glazed windows to the side and rear and ‘Juliet’ doors to the rear patio area, ceiling cornice, ceiling speakers, down lights, telephone point, TV aerial point, power points, oak wood flooring with under floor heating and oak door to;

Utility

A range of wall and base units with granite work surface over to upstand, inset stainless steel sink unit with mixer tap over and drainer grooves in granite, Washing machine and dryer, ceiling cornice, down lights, power points and door to integral garage.

Integral Garage

5.72m x 2.81m (18' 9" x 9' 3"): Electric up and over door, boiler from domestic hot water and power points.

First Floor

Landing

Ceiling cornice, down lights, power points, telephone entry system, stairs to second floor with oak banister and oak doors to;

Sitting Room

4.98m x 4.87m (16' 4" x 16' 0"): Double glazed windows and ‘Juliet’ Doors to the rear terrace, ceiling cornice, ceiling speakers, down lights, telephone point, TV aerial point, power points, a contemporary gas flame limestone fireplace, under floor heating and folding doors to;

Dining Room

3.78m x 3.57m (12' 5" x 11' 9"): Double glazed windows to the rear, ceiling cornice, down lights, telephone point, TV aerial point and under floor heating.

Master Bedroom

5.71m x 3.76m (18' 9" x 12' 4"): Double glazed bay window and further window to the front, ceiling cornice, ceiling speakers, down lights, telephone point, TV aerial point, power points.

Dressing Area

2.92m x 2.8m (9' 7" x 9' 2"): Fitted glazed wardrobes with a range of hanging rails, shelves and draws, ceiling cornice, down lights and power points.

En-suite Bathroom

2.72m x 2.36m (8' 11" x 7' 9"): Obscure double glazed window to the front, a modern 4 piece bathroom comprising of tile panelled bath with hand held shower attachment, double shower cubicle with glazed screen, water fall shower head and separate shower attachment, low level WC with concealed cistern, wall hung wash hand basin with unit under and mirror over with draw incorporated, chrome ladder style towel radiator, tiled floor and part tiled walls, down lights, extractor fan and shaver point.

Second Floor

Landing

Ceiling cornice, down lights, power points, hatch to loft space and oak doors to;

Bedroom Two

5.28m x 2.54m (17' 4" x 8' 4"): Double glazed window to the front, ceiling cornice, telephone point, TV aerial point and power points.

En-suite Bathroom

2.52m x 1.68m (8' 3" x 5' 6"): Obscure double glazed window to the front, a modern 3 piece suite comprising of tile panelled jacuzzi bath with shower attachment and glazed screen, low level WC with concealed cistern, wall hung wash hand basin, chrome ladder style towel radiator, ceiling cornice, down lights, extractor fan, shaver point, tiled floor and part tiled walls.

Bedroom Three

4.15m x 3.77m (13' 7" x 12' 4"): Double glazed window to the rear, ceiling cornice, down lights, telephone point, TV aerial point and power points.

Bedroom Four

5m x 2.98m (16' 5" x 9' 9"): Double glazed window to the rear, ceiling cornice, down lights, telephone point, TV aerial point and power points.

Family Bathroom

4.12m x 3.96m (13' 6" x 13' 0"): Obscure double glazed ‘Velux’ window to the side, a modern 4 piece bathroom comprising of tile panelled jacuzzi bath with hand held shower attachment, double shower cubicle with glazed screen, water fall shower head and separate shower attachment, low level WC with concealed cistern, wall hung wash hand basin with unit under and mirror over with draw incorporated, chrome ladder style towel radiator, tiled floor and part tiled walls, down lights, extractor fan and shaver point.

Garden

The property is approached through wrought iron electric gates with stone pillars and pedestrian gate, with a sweeping tarmacadam drive, leading to the block paved driveway providing parking for up to four vehicles and giving access to the integrated single garage, with boxed hedged flagstone pathway leading to the front door.

To the rear of the property you will find a flagstone path leading around the side of the property and a patio area with space for alfresco entertaining. The rear garden which benefits from South and Westerly sun, is mainly laid with artificial grass for ease of use and low maintenance. This is surrounded by mature boarders and trees providing private screening. The garden also benefits from a children’s climbing frame with swings, slide and soft bark.

Directions

From our office, proceed down London Road in a northerly direction towards Wilmslow, after Alderley Edge School for Girls turn left into Brook Lane. Continue along Brook Lane for approximately quarter of a mile where the gates to the development can be found on the right. (Sat Nav use the postcode SK9 7QG)

Council Tax & Local Authority

Cheshire East Council - Band H - 2024/2025 - £4420.00

Facebook Twitter instagram google