£135,000

Congleton Road, Alderley Edge, Cheshire

1 1 1

A well-presented one-bedroom ground floor retirement apartment near Alderley village, offering secure, low-maintenance living. Features a bright lounge, fitted kitchen, double bedroom with wardrobes, and a shower room. Residents enjoy gardens, lounge, guest suite, and parking (subject to availability).

This this well presented one-bedroom retirement apartment is ideally positioned close to Alderley village, offering secure, low-maintenance living in a friendly and welcoming community.

Set within a well-kept development, the property ground floor apartment is accessed via a communal entrance with intercom entry, lift, and stairs to all floors. Inside, the apartment has been thoughtfully designed to provide comfort and ease of living. The spacious living room enjoys a rear aspect with plenty of natural light and views over the countryside and a central feature fireplace, creating a cosy focal point. The fitted kitchen is neatly arranged with modern units and integrated appliances. A generous double bedroom comes complete with fitted wardrobes, while the shower room is finished with a walk-in cubicle, vanity unit, and heated towel rail.

Residents have access to attractive communal gardens, including a west-facing patio that’s perfect for relaxing in the sun. Additional shared facilities include a residents’ lounge, laundry room, and a guest suite available for visiting family and friends. On-site parking may also be available to rent (subject to availability). Combining independence with peace of mind and a strong sense of community, this charming apartment is just a short stroll from the shops, cafés, and amenities of Alderley village.


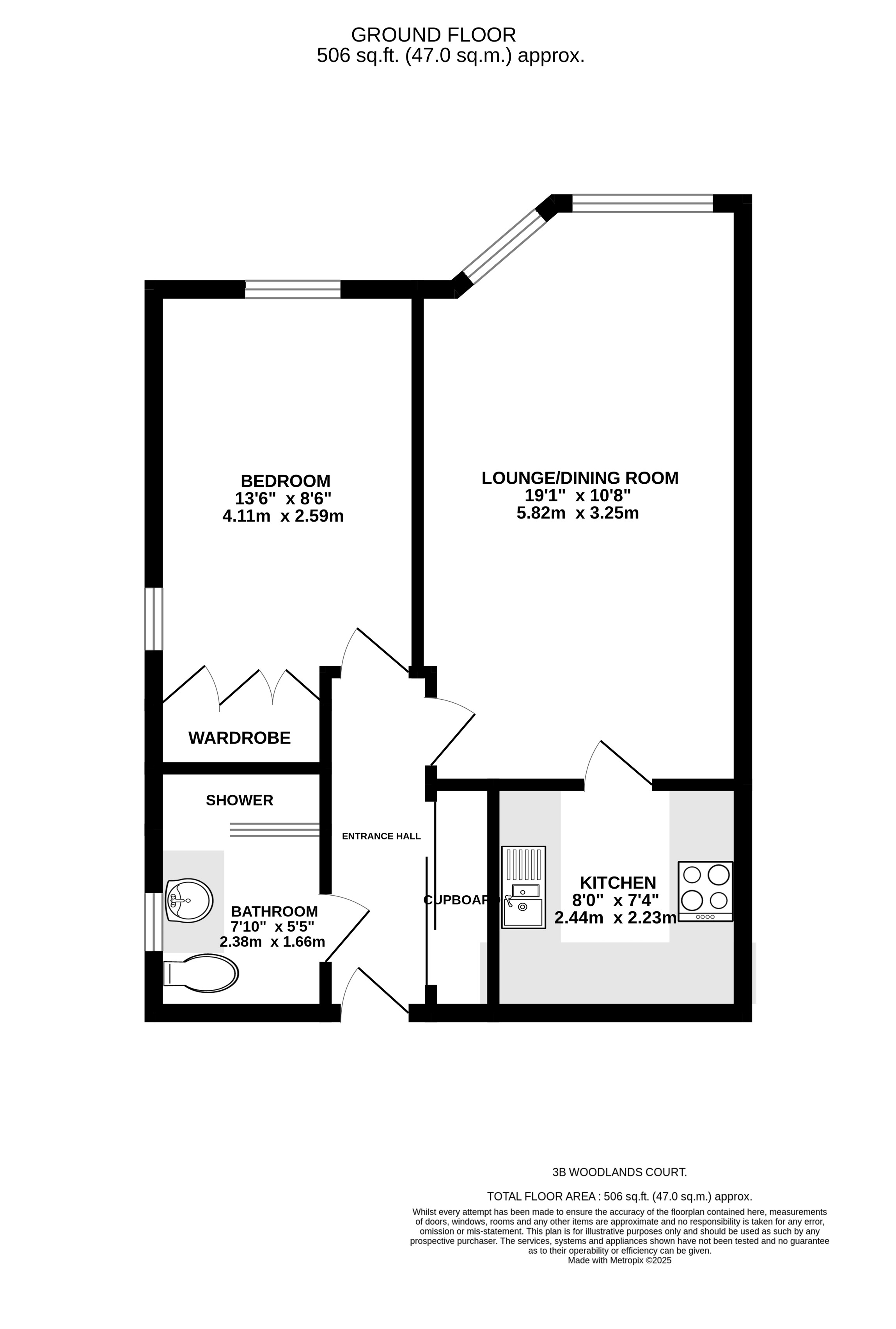
Room Dimensions

Communal Entrance Hall

Secure intercom entry system with stairs and lift access to all floors.

Entrance Hall

3.33m x 1.02m (10' 11" x 3' 4"): Telephone intercom, fitted cupboards with mirrored sliding doors, hanging rail, shelving, and housing for the fuse box and hot water immersion heater. Doors to:

Living Room

5.82m x 3.25m (19' 1" x 10' 8"): Double-glazed windows with west facing views, feature electric fireplace, TV aerial point, telephone point, power sockets, electric radiator, ceiling coving, and door to:

Kitchen

2.44m x 2.23m (8' 0" x 7' 4"): Fitted with a traditional range of wall and base units, rolled-edge worksurfaces with tiled splashback, stainless steel one-and-a-half sink and drainer, four-ring electric hob, single oven, space for fridge freezer, extractor fan, power sockets, and luxury vinyl flooring.

Bedroom

4.11m x 2.54m (13' 6" x 8' 4"): Side and rear aspect double-glazed windows with west facing views, fitted wardrobes with a variety of hanging rails and shelving, electric radiator, power sockets, and wall-mounted lights.

Bathroom

2.38m x 1.66m (7' 10" x 5' 5"): Modern white suite comprising a double shower cubicle with electric shower and handheld attachment, glazed screen and fold-down seat, low-level WC, vanity unit with inset wash hand basin and storage below, electric heater, towel radiator, shaver point, obscure side aspect double-glazed window, fully tiled walls, and tiled flooring.

Communal Gardens

Set within beautifully maintained gardens, featuring a large west-facing patio to the rear leading down to an attractive lawned area.

Communal Facilities

Residents’ laundry room, storage area and extensive communal lounge with kitchen facilities.

Parking

On-site parking spaces available to rent (subject to availability).

Agents’ Note

A self-contained double guest suite with twin beds and en-suite bathroom is available for visiting family and friends on a nightly rental basis (subject to availability).

Council Tax & Local Authority

Cheshire East Council – Band C – 2025/2026 – £2,056.39.

Material Information

Sprift report available on request.

Tenure

Leasehold – 125 years from 01/01/1986 (approximately 85 years remaining).

Material Information Part A

Tenure: Leasehold
Ground Rent: £200 per annum. reduced to £150 if paid within 14 days of due date.
Service Charge: £3359.64 per annum

Material Information Part B

Property type: See above
Property Construction: Brick built, tiled roof
Number and types of room: See above
Electricity Supply: Mains
Water Supply: Mains
Sewerage: Mains
Heating: Storage heaters, immersion heater.
Broadband: Standard, Superfast & Ultrafast available
Mobile Signal:
Indoor Voice - Likely= O2. Limited = EE, Three, Vodafone.
Indoor Data - Likely= O2. Limited = EE, Three, Vodafone.
Outdoor Voice - Likely = EE, Three, O2, Vodafone.
Outdoor Data - Likely = EE, Three, O2, Vodafone.
Parking: See above

Material Information Part C

Building Safety: no known issues
Restrictions, rights and easements: Land registry available on request
Flood Risk: River & Seas = no risk. Surface Water = Very Low
Costal Erosion: No
Planning permissions: Sprift report available on request
Accessibility/adaptions: Lift access
Coalfield or Mining Area: No

Facebook Twitter instagram google