£615,000

Heyes Lane, Alderley Edge, Cheshire

4 2 2

A beautifully extended 1,539 sqft four-bedroom Victorian mid-terrace blending period charm with modern living. Features include a sitting room with wood-burning stove, kitchen breakfast room with bi folding doors to the garden, main bedroom with en-suite, south-facing garden with countryside views, and off-road parking for two.

This elegant four-bedroom, two-bathroom Victorian mid-terrace property combines timeless period charm with the comfort of modern living. Thoughtfully extended and refurbished, it offers spacious and versatile accommodation, enhanced by beautiful original features and contemporary touches throughout.

The welcoming entrance hall leads into a characterful sitting room with a wood-burning stove, perfect for cosy evenings, alongside a dining room and a light-filled kitchen breakfast room designed for family living. The first floor provides a main bedroom with an en-suite shower room, two further bedrooms as well as a stylish family bathroom. A further double bedroom can be found on the second floor, offering flexibility for guests or home working.

Externally, the property benefits from a block-paved driveway at the front, providing off-road parking for two vehicles. To the rear, a delightful south-facing garden unfolds with a York stone patio, ideal for outdoor dining and entertaining, complete with external lighting and power points. Mature borders of flowers, shrubs, and trees create a tranquil setting, while open views over farmland towards The Edge offer a picturesque backdrop. This beautifully presented home perfectly balances period elegance with modern practicality.


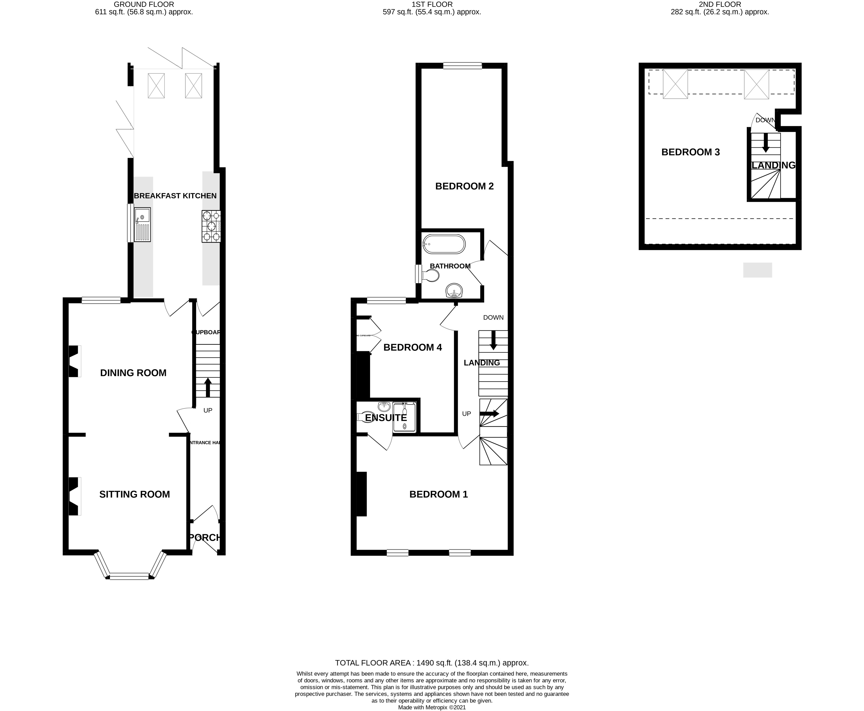
Room Dimensions

Ground Floor

Entrance Hall

3.67m x 1.02m (12' 0" x 3' 4") Wooden glazed front door to entrance porch with further wooden glazed door opening into hall, ceiling cornice, a radiator, power points, wood stripped floorboards, stairs to first floor and door to;

Living Room

4.63m x 3.73m (15' 2" x 12' 3") uPVC double glazed bay window to the front, ceiling cornice and rose, radiators, wood burning stove, power points, telephone point, fitted shelving, wood stripped flooring opening into;

Dining Room

4.08m x 3.82m (13' 5" x 12' 6") uPVC double glazed window to the rear, ceiling cornice and rose, radiators, cast iron fireplace with tiled hearth, power points, thermostat, fitted shelving, wood stripped flooring and door to;

Kitchen Breakfast Room

8.2m x 2.8m (26' 11" x 9' 2") uPVC double glazed window to the side, bi-folding doors to the side and rear and Velux windows. A contemporary kitchen with a range of wall and base units with wooden work surface over to tiled splash back, inset Belfast sink with mixer tap over, appliances comprising of range cooker, extractor hood, fridge, freezer, washing machine and dish washer, down lights, power points, under floor heating and under stairs cupboard housing the dryer, fuse box and power points.

First Floor

Landing

Radiator, power points, stairs to second floor and doors to;

Bedroom 1

4.94m x 3.67m (16' 2" x 12' 0") uPVC double glazed windows to the front, ceiling coving, cast iron fireplace, radiators, power points, wood stripped flooring and door to;

En Suite

2.04m x 1.05m (6' 8" x 3' 5") Three piece suite comprising of shower enclosure with shower attachment and glazed door, low level WC, wall hung wash hand basin with unit under, shaver point, extractor fan and tiled floor, part tiled walls.

Bedroom 2

4.37m x 2.79m (14' 4" x 9' 2") uPVC double glazed window to the rear, a radiator, power points and TV aerial point.

Bedroom 4

3.08m x 2.49m (10' 1" x 8' 2") uPVC double glazed window to the rear, a radiator, power points, cupboard housing Valiant boiler for domestic hot water and central heating and wood stripped flooring.

Bathroom

2.14m x 1.89m (7' 0" x 6' 2") Obscure double glazed window to the side, a modern three piece suite comprising of roll top bathtub, low level WC, pedestal wash hand basin, chrome ladder style towel radiator and tiled floor.

Second Floor

Bedroom 3

4.84m x 4.5m (15' 11" x 14' 9") max restricted head height.Velux windows to the rear, power points, telephone point, electric store heater.

Outside

Gardens

To the front of the property there is a block paved driveway with parking for two vehicles. To the rear you will find a York stone patio with external lighting and power points. The garden is mainly laid to with mature borders comprising of flowers, shrubs and trees and views over the rear fields.

Materinal Information Part A

Tenure: Leasehold
Lease length: 999 years (less 10 days) from 3 July 1900 - 874 left
Ground Rent: £4.

Material Information Part B

Property Type: See above
Property Construction: Brick built, tiled roof
Number and types of room: See above
Electricity Supply: Mains
Water Supply: Mains
Sewerage: Mains
Heating: Gas boiler, Radiators and under floor heating in 1st floor bathroom.
Broadband: Standard, superfast & ultrafast available
Mobile Signal:
EE = Variable in-home and good outdoor
O2 = Good outdoor
Three = Variable outdoor
Vodafone = Variable in-home and good outdoor
Parking: See above

Material Information Part C

Building Safety: No known issues
Restrictions, rights and easements: Land registry title is available on request
Flood Risk: River & Seas = Very low. Surface Water = Very low
Costal Erosion Risk: No
Planning Permissions: Sprift report available on request
Accessibility/adaptions: none
Coalfield or Mining Area: No

Local Authority & Council Tax

Cheshire East Council - Band E – 2025/2026 - £2,898.47

Facebook Twitter instagram google