£950,000

Brook Lane, Alderley Edge, Cheshire

4 2 3

A beautifully presented four bedroom three bathroom luxury townhouse in an exclusive gated development. Stylish open-plan living dining kitchen with integrated appliance, first floor sitting room with westerly facing balcony, superb master suite, 3 further double bedrooms one with and ensuite, drive way with parking for two cars, integral garage and westerly facing landscaped garden.

Set within one of Alderley Edge’s most sought-after gated developments, 2 Oakbank offers refined townhouse living with a blend of luxury, comfort, and contemporary style. High-quality finishes run throughout, including beautifully restored oak flooring and premium fittings.

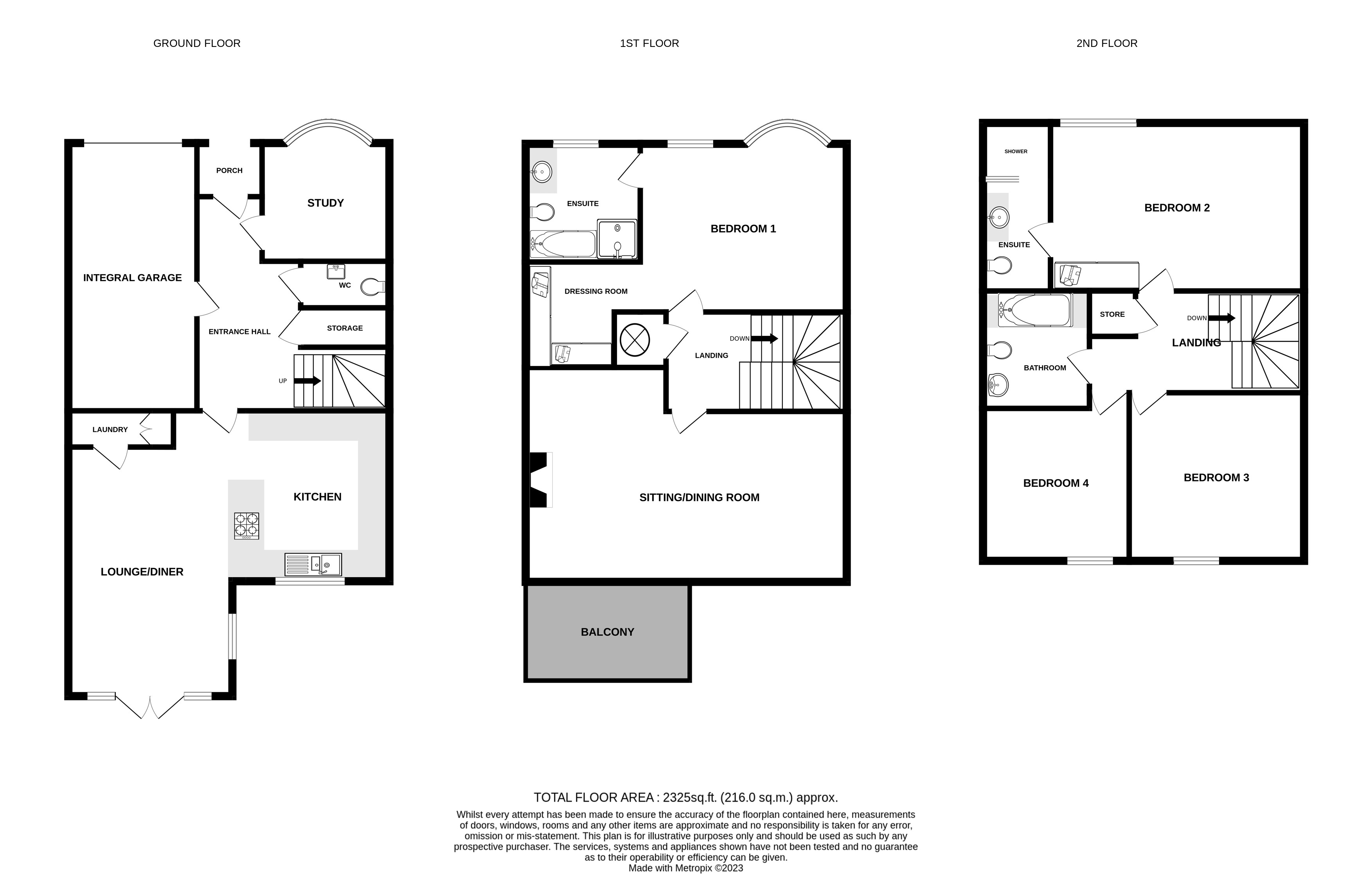
The accommodation comprises to the ground floor, An inviting entrance hall with oak flooring leads to a cloakroom/WC and a versatile dining room or study. The heart of the home is the impressive open-plan dining/living/kitchen area, featuring a sleek high-gloss contemporary kitchen complete with integrated appliances. A separate utility room and access to the integral garage.

The first floor offers an elegant sitting room with doors opening onto a private balcony, perfect for relaxation. The spacious master suite includes a dressing room and a stylish en-suite bathroom. The upper floor features a generous second bedroom with its own en-suite bathroom, along with two further double bedrooms and a modern family bathroom.

Externally the property is approached via electronically operated wrought-iron gates and a pedestrian entrance, the property enjoys a secure and prestigious setting. A block-paved driveway leads to the integral garage, while the rear of the home boasts a westerly facing landscaped garden with an Indian stone patio and well-stocked flower and shrub borders—an ideal space for outdoor entertaining.

This superbly presented home offering luxurious living in an exceptional Alderley Edge location, ready to move into and enjoy.


Room Dimensions

Entrance Porch

1.77m x 1.24m (5' 10" x 4' 1") Down light, wood flooring, mail box, gas and electric meter boxes and a natural oak panelled front door.

Entrance Hall

4.6m x 4.66m (15' 1" x 15' 3"): Ceiling cornice, down lights, oak flooring with under floor heating, under stairs storage cupboard, entry video phone system, stairs to first floor, doors off to;

Cloakroom

1.95m x 1.02m (6' 5" x 3' 4"): Fitted with a modern white suite comprising of low level WC, pedestal wash hand basin, limestone tiled floor with under floor heating, chrome heated ladder style towel radiator, half tiled walls, down lights.

Study

2.8m x 2.58m (9' 2" x 8' 6") Double glazed bay window to the front, oak flooring with under floor heating, down lights, ceiling speakers, 'Lutron' lighting panel, power points.

Open Plan Kitchen Dining family Room

Kitchen Area

3.97m x 3.75m (13' 0" x 12' 4"): Double glazed window to rear, fitted with a 'Miele' modern range of high gloss wall an base units, with granite work surfaces over to splash backs, inset stainless steel one and half bowl sink unit with mixer hot water tap, integrated 'Miele' appliances comprise of inset 5 ring hob with extractor hood over, fan assisted oven, steam oven, two plate warming drawers, steam oven, , fridge and freezer, dishwasher, coffee machine and combination ‘Bosch’ oven/microwave. Cupboard housing wall mounted boiler for domestic hot water and central heating, oak wood flooring with under floor heating, down lights, ceiling coving, breakfast bar opening into.

Living Dining Area

6.27m x 3.9m (20' 7" x 12' 10"): Double glazed window to side, double glazed windows and French doors to rear garden, oak wood flooring with under floor heating, ceiling coving, down lights, ceiling speakers, power points, TV aerial point, 'Lutron' lighting control.

Utility Room

2.32m x 0.8m (7' 7" x 2' 7"): Built in cupboard with shelving, down lights, tiled flooring and plumbing for washing machine and dryer.

Integral Garage

5.87m x 2.82m (19' 3" x 9' 3"): Electric up and over door, fuse box, power points, racked shelving and control unit for speakers on the ground and first floors, personal door to entrance hall.

First Floor

Landing

Ceiling coving, down lights, entry phone system, power points, built in cupboard housing hot water cylinder, LCD computer control panel for under floor heating and hot water, and additional storage, doors off to;

Sitting Dining Room

7.67m x 5.09m (25' 2" x 16' 8") narrowing to 3.78m (12' 5"): Double glazed window to rear and double glazed window and French doors to balcony, feature fireplace with inset remote control gas flame effect fire, ceiling coving, down lights, ceiling speakers, power points, TV aerial point, wall lights, 5amp ring main, 'Lutron' lighting panel and built in storage with display shelving.

Balcony

Decked balcony, with wrought iron railings with external lighting and power point.

Bedroom One

4.54m x 3.70m (14' 11" x 12' 2"): Double glazed bay window and window to the front, ceiling coving, down lights, power points, TV aerial point, ceiling speakers, 'Lutron' lighting control panel, under floor heating.

Dressing Room

2.29m x 2.11m (7' 6" x 6' 11"): Fitted with an extensive range of wardrobes with hanging rails and shelving, down lights, under floor heating.

Ensuite

2.72m x 2.54m (8' 11" x 8' 4"): Double glazed window to the front, fitted with a modern white suite comprising of Jacuzzi spa bath, shower cubicle with mains fed shower and glazed shower screen, vanity bowl wash hand basin with mixer tap on natural wood stand, concealed cistern wall hung WC, limestone titled floor and half tiled walls, ceiling coving, down lights, chrome heated ladder style towel radiator, under floor heating.

Second Floor

Landing

Ceiling cornice, down lights, built in storage cupboard, power points, loft access hatch with pull downstairs, doors off to;

Bedroom Two

5.91m x 3.76m (19' 5" x 12' 4"): Double glazed window to the front with fitted shutters, ceiling coving, down lights, power points, TV aerial point, under floor heating, door to en-suite.

Ensuite

3.6m x 1.63m (11' 10" x 5' 4"): Fitted with a modern suite comprising of fully tiled walk in shower with curved glass screen, mains fed shower with body jets, concealed cistern low level WC, vanity bowl wash hand basin with mixer tap, down lights, limestone tiled floor with under floor heating, half tiled walls, chrome heated ladder style towel radiator.

Bedroom Three

3.92m x 3.79m (12' 10" x 12' 5"): Double glazed window to rear, coving, down lights, under floor heating, power points, TV aerial points.

Bedroom Four

3.79m x 3.62m (12' 5" x 11' 11"): Double glazed window to rear, coving, down lights, under floor heating, power points, TV aerial point, built in wardrobes with hanging rail, shelving and drawer units.

Family Bathroom

2.6m x 2.34m (8' 6" x 7' 8"): Modern suite comprising of Jacuzzi spa bath, wall hung wash hand basin, concealed cistern wall hung WC, limestone tiled floor and half tiled walls, chrome heated ladder towel radiator, down lights.

Outside

Garden

The property is approached through wrought iron electric gates with stone pillars and pedestrian gate, with a sweeping tarmacadam drive, leading to the block paved driveway with parking for two cars, giving access to the integrated single garage, with boxed hedged flagstone pathway leading to the front door. To the rear of the property, the garden has been landscaped for ease of maintenance, with Indian stone flagged patio, flower and shrub boarders, outside lighting, and water tap. There is a gate to the rear which gives access to the development’s communal gardens for the enjoyment of the residents and gardeners path.

Local Authority & Council Tax

Cheshire East Council – Band H – 2026/2027 - £4,742.96

Material Information Part A

Tenure: Leasehold
Lease length:150 years from 1 July 2005
Service charge:1st Oct 2025 - 31 Dec 2025: £623.33
Ground rent:£250

Material Information Part B

Property type: See above
Property Construction: Brick built, tiled roof
Number and types of room: See above
Electricity Supply: Mains
Water Supply: Mains
Sewerage: Mains
Heating: Boiler & radiators - mains gas
Broadband: Standard, Superfast & Ultrafast available
Mobile Signal:
Indoor Voice - Limited= EE, Three, 02, Vodafone.
Indoor Data - Limited= EE, Three, 02, Vodafone.
Outdoor Voice - Likely = EE, Three, O2, Vodafone.
Outdoor Data - Likely = EE, Three, O2, Vodafone.
Parking: See above

Material Information Part C

Building Safety: no known issues
Restrictions, rights and easements: Land registry available on request
Flood Risk: River & Seas = no risk. Surface Water = Low
Costal Erosion: No
Planning permissions: Sprift report available on request
Accessibility/adaptions: none
Coalfield or Mining Area: No

Facebook Twitter instagram google