£625,000

Chapel Road, Alderley Edge, Cheshire

4 3 2

A well presented four-bedroom, two-bathroom cottage in the heart of Alderley Edge village, close to local amenities. Benefiting from off-road parking for two cars and a rear patio garden. Viewing is highly recommended.

Situated in the very heart of Alderley Edge village, this well-presented four-bedroom, two-bathroom period cottage offers deceptively spacious accommodation, off-road parking, and a charming rear patio garden, all within easy walking distance of the village’s shops, restaurants, cafés, and transport links

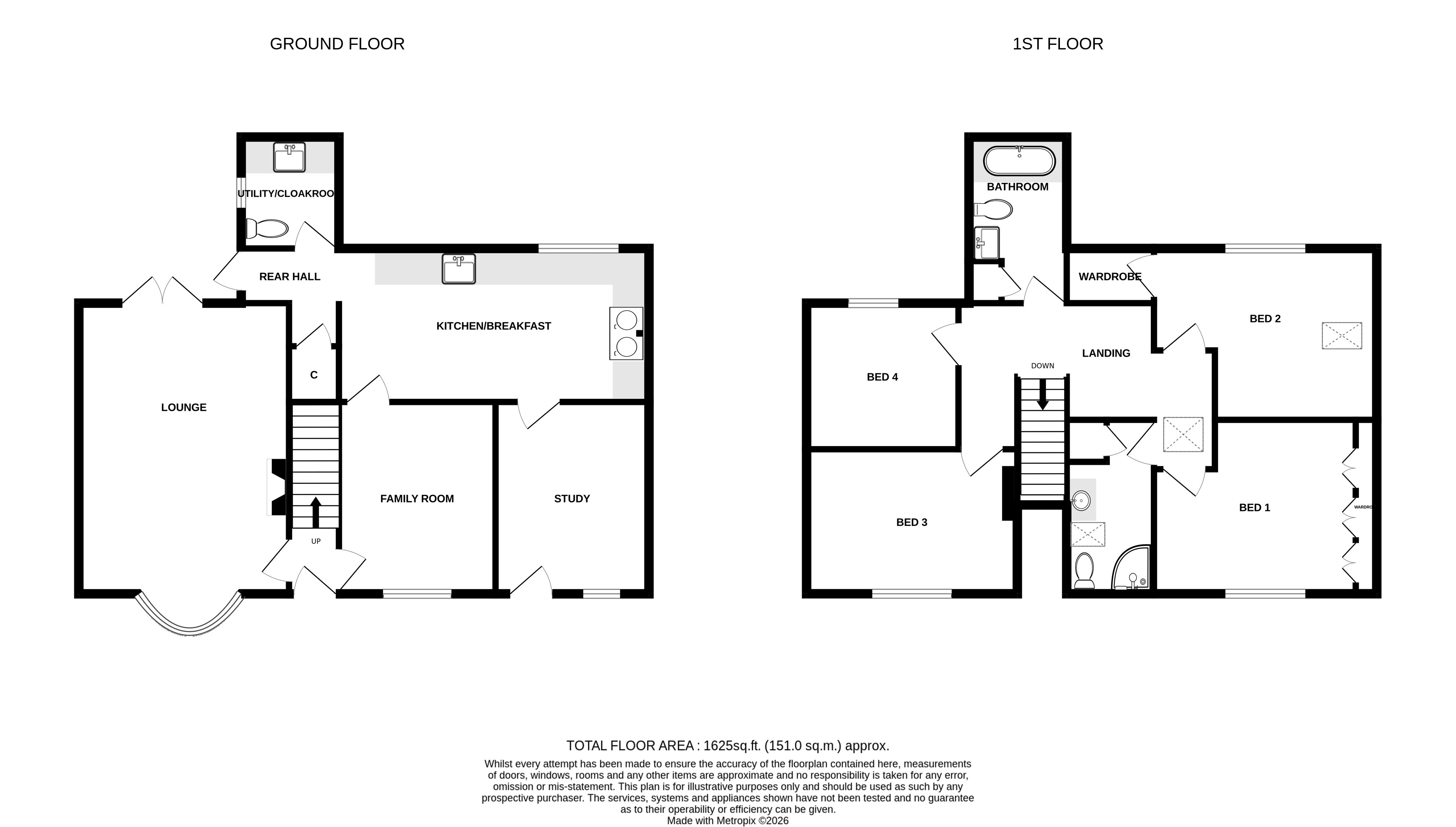
The accommodation is arranged over two floors and blends character features with modern comforts. To the ground floor, the property briefly comprises a welcoming entrance hall, a comfortable lounge, a separate dining room ideal for entertaining, and a generous kitchen/breakfast room featuring a distinctive four-oven Aga. Further ground floor accommodation includes a study, perfect for home working, along with a utility room and cloakroom.

To the first floor are four well-proportioned bedrooms, complemented by a family bathroom and a separate shower room.

Externally, the property benefits from off-road parking for two vehicles and an enclosed patio garden to the rear, providing a pleasant and low-maintenance outdoor space.

This attractive village-centre home must be viewed to be fully appreciated. Viewing is highly recommended.


Room Dimensions

Ground Floor

Entrance Hall

Glazed timber door, laminate wood flooring, stairs to first floor, doors off to:

Lounge

18' 2" x 13' 1" (5.53m x 4.00m) Bay window to front French doors to rear garden, fireplace with inset stove and slate hearth, recess book shelving , wall lights, tv point, telephone point, laminate wood flooring, radiator.

Kitchen/breakfast Room

19' 4" x 9' 7" (5.89m x 2.93m) Window to rear, fitted with a range of matching base units with timber work surfaces over with inset Belfast sink, four oven aga, built in dishwasher, fridge freezer, terracotta tiled floor, radiator, power points, inset LED down lights.

Dining Room

12' x 9' 9" (3.65m x 2.98m) Window to front, laminated wood flooring, walls lights, power points, tv aerial point, radiator.

Study

12' x 9' 7" (3.65m x 2.92m) Window and stable door to front, wall lights, power points, radiator.

Rear Hall

Door to rear garden, under stairs storage cupboard, radiator, terracotta tiled floor.

Utility Room

6' 11" x 6' 0" (2.12m x 1.83m) Window to side, fitted with a range of wall and base units, washing machine, Belfast sink, low level wc.

First Floor

Landing

Split level landing. Doors of to:

Bedroom 1

13' 9" x 10' 6" (4.20m x 3.19m) Window to front, radiator, power points, range of built in wardrobes with hanging rail and shelving.

Shower Room

With white suite comprising: Corner shower cubicle with glazed screen, low level wc , wash hand basin set into vanity unit. airing cupboard, tiled walls and floor, Velux window.

Bedroom 2

13' 11" x 10' 8" (4.24m x 3.26m) Window to rear, Velux window, radiator, power points, walk-in cupboard with hanging rail and shelving.

Bedroom 3

13' 5" x 9' 0" (4.10m x 2.75m) Window to front, radiator, power points.

Bedroom 4

9' 5" x 8' 11" (2.88m x 2.73m) Window to rear, radiator, power points.

Bathroom

White suite comprising: panelled bath with mains fed shower over and glazed shower screen, low level wc, pedestal wash hand basin, chrome heated ladder towel rail, tiled walls and floor, built in storage cupboard with boiler for domestic hot water and central heating.

Outside

Garden

To the rear of the property there is a paved southerly facing patio with flower and shrub borders. There is a block paved driveway providing off road parking for two cars.

Council Tax & Local Authority

Cheshire East Council - Band E - 2025/2026 - £2827.55

Material Information Part A

Tenure: Leasehold 999 years from 29 September 1853, 827 Years Remaining.

Material Information Part B

Property Type: See above
Property Construction: Brick and render, tiled roof
Number and types of room: See above
Electricity Supply: Mains
Water Supply: Mains
Sewerage: Mains
Heating: Gas boiler and Radiators
Broadband: Standard, superfast & ultrafast available
Mobile Signal:
EE = Good outdoor, variable in-home
O2 = Good outdoor, variable in-home
Three = Good outdoor
Vodafone = Good outdoor & in-home
Parking: See above

Material Information Part C

Building Safety: No known issues
Restrictions, rights and easements: Land registry title is available on request.There is a vehicular and pedestrian right of way over the driveway, permitting the occupants of the Postmaster’s House to access the rear of their property for the purpose of parking their vehicle behind there gates.
Flood Risk: River & Seas = Very low. Surface Water = Low
Costal Erosion Risk: No
Planning Permissions: Sprift report available on request
Accessibility/adaptions: None
Coalfield or Mining Area: No

Facebook Twitter instagram google