£1,400 PCM

Heyes Lane, Alderley Edge, Cheshire

2 1 1

A Stunning first-floor 2-bed apartment, beautifully modernised to a high standard. Features spacious lounge/diner, sleek kitchen with integrated appliances, stylish bathroom, and two double bedrooms with built-in wardrobes. Set in lovely communal gardens with parking and garage and with in walking distance to village. Available 12th December 2025, Furnished. 

This truly stunning first-floor, two-bedroom apartment offers elegant modern living just a short stroll from the village centre. Immaculately refurbished to the highest standard, this home combines style, comfort, and practicality, making it perfect for discerning buyers seeking a turnkey property.

Step inside to a welcoming entrance hall with sleek tiled flooring, subtle lighting, and clever storage solutions — a fitting introduction to the quality throughout.

The spacious lounge and dining area is a standout feature of the home, bathed in natural light from dual-aspect windows. With its contemporary tiled flooring, clean lines, and warm ambience, this versatile space is ideal for both relaxing and entertaining.

The modern breakfast kitchen is beautifully designed, featuring crisp white high-gloss cabinetry, seamless Corian work surfaces, and a full range of integrated appliances including a five-ring gas hob, oven, dishwasher, washer-dryer, and fridge freezer. A stylish breakfast bar creates a sociable spot for morning coffee or casual dining.

There are two generous double bedrooms, both tastefully finished with built-in wardrobes providing excellent storage. The principal bedroom enjoys an impressive sense of space, while the second offers flexibility for guests or a home office.

The luxurious bathroom is finished to perfection, featuring a rainfall shower over a full-size bath, sleek vanity unit with inset basin and mirrored storage, a concealed cistern WC, and contemporary tiling throughout — all complemented by soft lighting and a chrome heated towel rail.

Outside, residents can enjoy beautifully maintained communal gardens, with mature trees and lawned areas providing a peaceful green outlook. The property also benefits from communal parking and a private garage with power, lighting, and useful eaves storage.

Located within easy walking distance of local shops, cafés, and amenities, and set within a well-kept development, this apartment offers a rare combination of convenience, quality, and sophistication.

Viewing is highly recommended to fully appreciate the exceptional finish and contemporary design of this superb home.

Available 12th December 2025, Furnished.


Room Dimensions

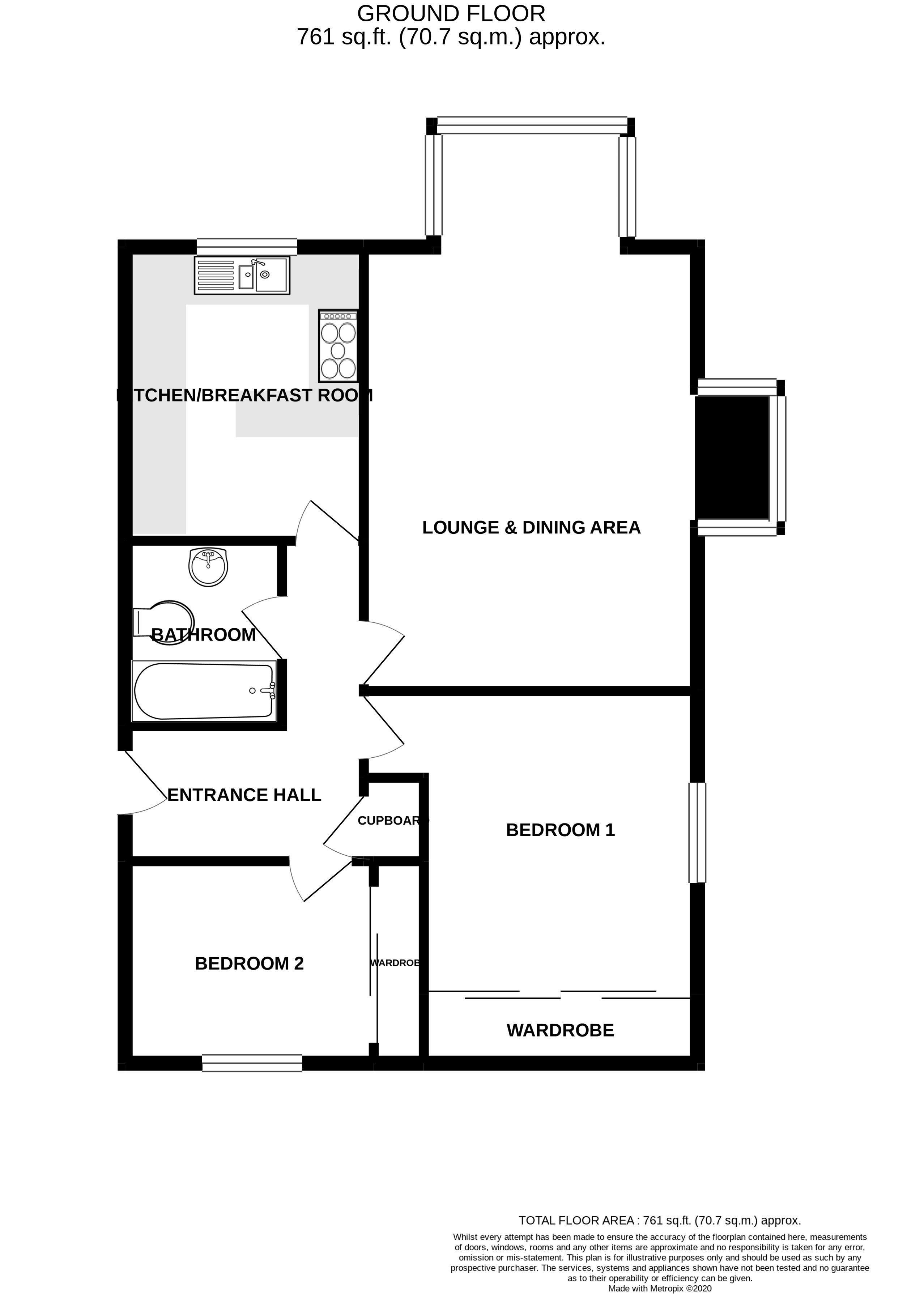
Ground Floor

Communal Entrance Hall

Stairs to first floor

First Floor

Entrance Hall

Tiled floor, down lights, concealed radiator, built in cupboard with handing rail and shelf, doors off to;

Lounge & Dining Room

22' 10" x 13' (6.97m x 3.97m) Max into bay. Double glazed windows to front and side, tiled floor, down lights, concealed radiator, power points, tv aerial point.

Breakfast Kitchen

11' 1" x 9' 9" (3.37m x 2.97m) Double glazed window to front, modern white high gloss kitchen with Corian worksurfaces with inset single drainer sink unit with mixer tap over and waste disposal. tiled splash backs, inset appliances comprise of, 5 ring gas hob with extractor hood over, oven, slimline dishwasher, Washer dryer and a fridge freezer, down lights, tiled floor, breakfast bar.

Bedroom 1

14' 6" x 13' (4.43m x 3.97m) Double glazed window, built in wardrobes with handing rails, shelving and drawer units, concealed radiator, tiled flooring, down lights, power points, Tv aerial point.

Bedroom 2

11' 6" x 8' 2" (3.50m x 2.50m) Double glazed window, built in wardrobes with handing rails, shelving and drawer units, concealed radiator, tiled flooring, down lights, power points, Tv aerial point.

Bathroom

6' 6" x 5' 9" (1.98m x 1.75m) fitted with a modern white suite comprising of panelled bath with mains fed rain fall shower over, wash hand basin inset into vanity units with mirrored cupboards over, wall hung concealed cistern low level wc, tiled walls and floor, down lights, chrome heated ladder style towel radiator, extractor fan.

Outside

Communal Gardens

There are mature extensive gardens surrounding Cottage Lawns for communal use, which consist of a large lawned area with many mature shrubs trees etc. Which are maintained by the Management Company. The sweeping driveway skirts the edge of the gardens and leads to the communal parking, garage block and bin stores.

Garage

with metal up and over door. Electric light and power. Useful eaves storage.

Local Authority & Council Tax

Cheshire East Council - Band D - 2025/2026 - £2,313.45

Deposit

5 Weeks Rent

Material Information Part B

Property type: See above
Property Construction: Brick built, tiled roof
Number and types of room: See above
Electricity Supply: Mains
Water Supply: Mains
Sewerage: Mains
Heating: Boiler & radiators - mains gas
Broadband: Standard & Superfast available
Mobile Signal:
Indoor Voice - Likely= EE, Three, 02, Vodafone.
Indoor Data - Likely = O2. Limited= EE, Three, Vodafone.
Outdoor Voice - Likely = EE, Three, O2, Vodafone.
Outdoor Data - Likely = EE, Three, O2, Vodafone.
Parking: See above

Material information Part C

Building Safety: no known issues
Restrictions, rights and easements: Land registry available on request
Flood Risk: River & Seas = no risk. Surface Water = Very Low
Costal Erosion: No
Planning permissions: Sprift report available on request
Accessibility/adaptions: none
Coalfield or Mining Area: No

Facebook Twitter instagram google