£625,000

Over Alderley, Macclesfield, Cheshire

3 2 2

A Three bedroom, Two bathroom semi detached barn conversion extended and beautifully presented in a contemporary style, with parking for two cars and views towards the Pennines.

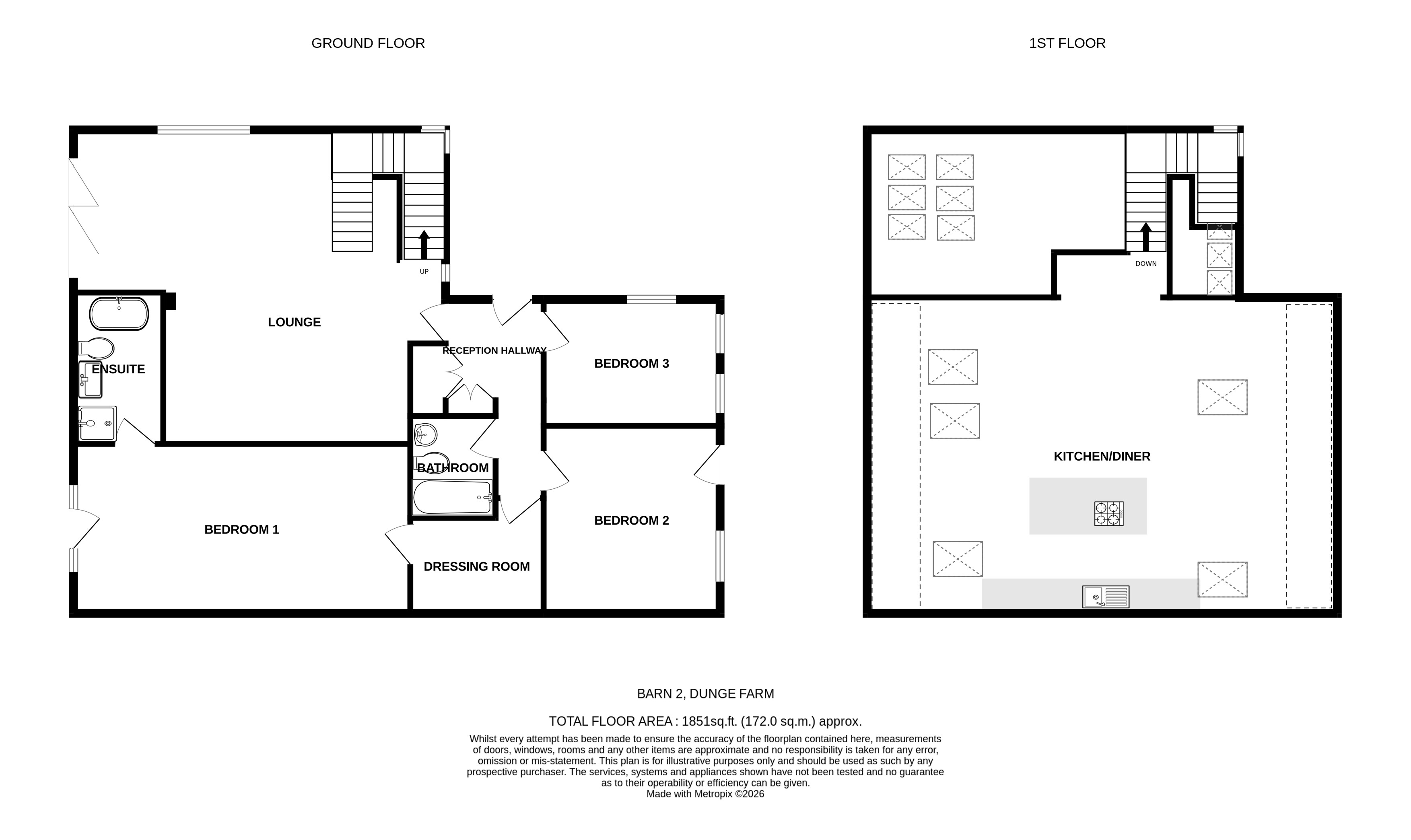
Set within an attractive semi-rural development, this impressive contemporary barn conversion offers generously proportioned accommodation arranged over two floors, extending to approximately 1,851sqft. The property is introduced via a welcoming entrance hall with tiled flooring, leading through a glazed door into a striking reception room featuring a vaulted ceiling and bi-fold doors that open onto the rear garden, enjoying far-reaching views towards the Pennines. A sleek staircase with glazed balustrade rises to the dining kitchen, fitted with a high-quality Siematic kitchen and integrated appliances.

The principal bedroom suite benefits from a dedicated dressing room and en-suite bathroom, complemented by two further double bedrooms and a well-appointed family bathroom.

Externally, a gently winding driveway serves the development and provides access to the property’s double parking area. To the rear, a paved terrace flows onto a lawned garden backing onto open fields, with gated side access and access to visitor parking. Early viewing is strongly advised to fully appreciate the scale, finish and setting of this exceptional home.


Room Dimensions

Ground Floor

Entrance Hall

Oak front door, down lights, tiled floor, radiator, built in storage cupboard housing the LPG fired Worcester combi boiler for domestic hot water and central heating, further storage cupboard, glazed door to;

Reception Room

24' 9" x 21' 10" Narrowing to 10'9" (7.55m x 6.65m narrowing to 3.29m) L shaped: Bi-folding doors opening onto the rear garden with floor to ceiling windows to the side with a vaulted ceiling, Velux windows, 'Hwan' pedestal wood burning stove with exposed flue, tiled flooring, chrome power points and switches, radiators, TV aerial point, down lights, wall lights, up lights, inset ceiling speakers, stairs to first floor with chrome hand rail and glass balustrade with under stairs storage cupboard.

Master Bedroom suite

Dressing Room

8' 11" x 6' 4" (2.72m x 1.93m) Down lights, travertine limestone tiled floor, radiator, power points, door to;

Bedroom 1

22' 6" x 11' 4" (6.87m x 3.46m) Double glazed window and door to rear, down lights, radiators, chrome power points, tv aerial point.

En Suite Bathroom

10' 2" x 5' 10" (3.09m x 1.78m) Fitted with a modern white suite comprising of free standing bath with wall mounted mixer tap and shower attachment, glazed shower cubicle with rainfall showerhead , wall mounted wash hand basin, low level WC, chrome heated ladder style towel radiator, shaver point, extractor fan and down lights.

Bedroom 2

12' 8" x 11' 9" (3.86m x 3.58m) Double glazed window and door to side, vaulted ceiling, travertine limestone tiled floor, wall lights, pendant light, chrome power points, tv aerial point, radiator.

Bedroom 3

11' 9" x 8' 7" (3.58m x 2.61m) Double glazed windows to front and side, vaulted ceiling, travertine limestone tiled floor, wall lights, pendant light, chrome power points, radiator, cupboard housing fuse box and electric meters.

Bathroom

6' 9" x 5' 7" (2.06m x 1.71m) Fitted with a modern white suite comprising of panelled bath, pedestal wash hand basin, low level wc, tiled walls and floor, chrome heated ladder style towel radiator, down lights, extractor fan.

First Floor

Galleried Landing

With chrome hand rail and glazed balustrade over looking the reception room, opening up onto

Kitchen diner

31' 5" x 22' (9.58m x 6.70m) Max. A Siematic fitted kitchen with black granite work surface, 1-1/2 bowl sink with mixer tap, electric fan oven, combination microwave with grill, built-in fridge, dishwasher and Neff washer/drier. Central island unit in Kashmir white granite and glass breakfast bar with built-in 5 ring Neff gas hob, extractor fan over and built-in freezer. Velux windows, down lights, chrome power points, TV aerial point, ‘Bose’ surround sound with cube speakers, ‘Ted Todd’ ‘Charnwood’ engineered oak lacquered flooring, down lights and anthracite radiators.

Outside

Garden

The entrance driveway to the development meanders around the properties and leads to the double parking area to the front of the property. To the rear of the property there is a paved terrace opening up onto the lawned garden with views over the fields to the rear with a gated side access. There is also a visitor parking area.

Material Information Part A

Tenure: Leasehold
Lengh of Lease:999 Years from 18/08/2006
Service Charge:£120pcm
Ground Rent:Nil

Material Information Part B

Property Type: See above
Property Construction: Brick built, tiled roof
Number and types of room: See above
Electricity Supply: Mains
Water Supply: Mains
Sewerage: shared septic tank
Heating: LPG fired boiler and Radiators
Broadband: Standard, Superfast & Ultrafast available
Mobile Signal:
EE = Good outdoor
O2 = Good outdoor
Three = Good outdoor
Vodafone = Good outdoor
Parking: See above

Material Information Part C

Building Safety: No known issues
Restrictions, rights and easements: Land registry title is available on request
Flood Risk: River & Seas = Very low. Surface Water = Very low
Costal Erosion Risk: No
Planning Permissions: Sprift report available on request
Accessibility/adaptions: none
Coalfield or Mining Area: No

Facebook Twitter instagram google