£1,950 PCM

Prestbury, Macclesfield, Cheshire

3 2 2

Well-presented three-bedroom, two-bathroom end-terrace townhouse within walking distance of Prestbury village. Spacious living accommodation over three floors, south-facing roof terrace and courtyard garden, off-road parking and tandem garage. Available 6th March 2026, unfurnished.

A well-presented and spacious three-bedroom, two-bathroom end-terrace townhouse, ideally located within walking distance of Prestbury village centre.

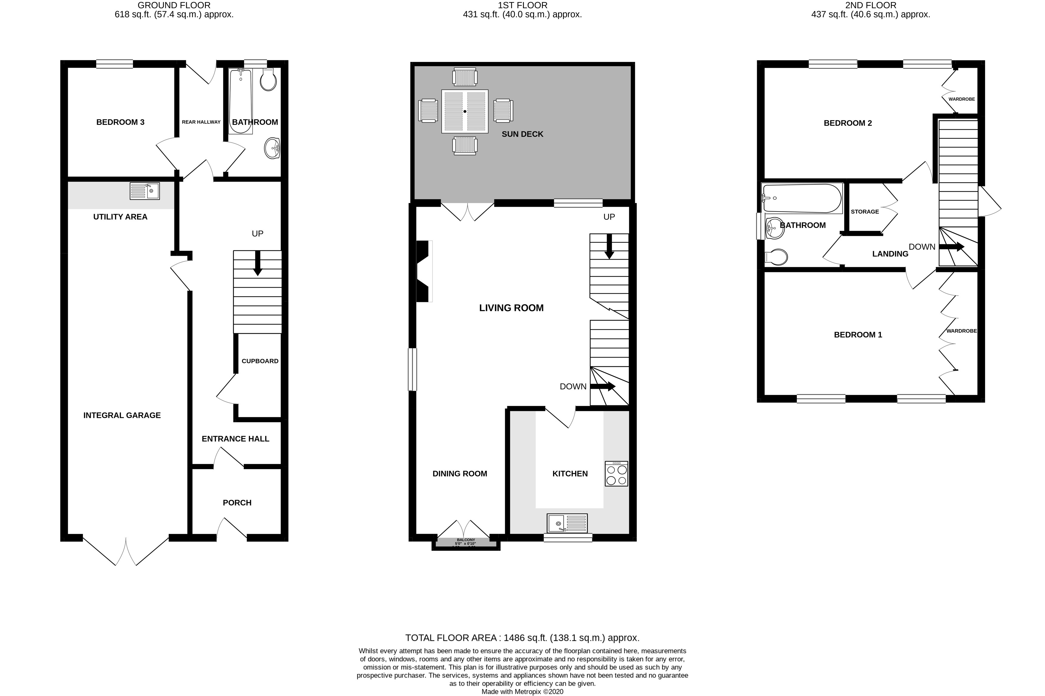
The property offers well-proportioned, neutrally decorated accommodation arranged over three floors. The ground floor comprises an entrance porch leading to an inner hallway, a third bedroom, a modern bathroom, access to the integral tandem double garage with utility area to the rear.

To the first floor, the accommodation opens into a bright and generous living room with French doors leading onto a south-facing roof terrace, creating an excellent space for relaxing or entertaining. The living room flows seamlessly into the dining area and a separate, contemporary, well-equipped kitchen.

The second floor hosts two good-sized double bedrooms, both benefiting from fitted wardrobes, along with a family bathroom.

Externally, the property offers ample off-road parking to the front. To the rear is a charming south-facing courtyard garden with boundary hedging, established shrubbery and a seating area. Available unfurnished from 6th March 2026


Room Dimensions

Ground Floor

Porch

1.90m x 1.72m (6' 3" x 5' 8"): Wood Panelled front door with glazed fan light above. tiled floor, Radiator, glazed panelled door opening to;

Entrance Hall

laminate wood flooring, radiator, power points, stairs to first floor with under stairs storage cupboard, down lights, power points, doors off to;

Inner Hall

uPVC double glazed panelled door to garden, radiator, doors off to;

Bedroom Three

2.71m x 2.60m (8' 11" x 8' 6"): uPVC double glazed window to rear, down lights, radiator, power points.

Bathroom

3.21m x 1.38m (10' 6" x 4' 6"): uPVC double glazed window to rear, Fitted with a modern white suite comprising of panelled bath with mixer tap and shower attachment, concealed cistern low level wc, wall mounted wash hand basin with mirror over, 1/2 tiled walls, tiled floor, radiator.

Utility Room

2.63m x 1.5m (8' 8" x 4' 11"): fitted with a modern range of base units with work surface over with inset stainless steel single drainer sink unit, space and plumbing for washing machine and dryer.

Integral Garage

6.84m x 3.4m (22' 5" x 11' 2"): double doors to front, wall mounted combi boiler for domestic hot water and central heating, tap, fuse box and meters, power points.

First Floor

Living Room

5.21m x 5.10m (17' 1" x 16' 9"): uPVC double glazed window to side and rear, uPVC double glazed French doors to terrace, wall lights, radiator, laminate wood flooring, tv point, focal fire place, archway to;

Dining Room

3.16m x 2.27m (10' 4" x 7' 5"): uPVC double glazed French doors to front with Juliette balcony, radiator, power points.

Kitchen

uPVC double glazed window to front, fitted with a modern range of high gloss wall and base units with work surfaces over to splash backs, inset 1 1/2 bowl stainless steel single drainer sink unit, 4 ring hob with extractor hood over and oven under, built in fridge and freezer, dishwasher, laminate flooring, power points.

Roof Terrace

.2m x 3.2m (17' 1" x 10' 6"): Wrought iron railing, tiled floor.

Second Floor

Landing

built in storage cupboard, doors off to;

Bedroom One

5.1m x 3.02m (16' 9" x 9' 11"): uPVC double glazed windows to front, built in wardrobes with hanging rails, shelving and drawers. radiator, power points.

Bedroom Two

5.1m x 2.94m (16' 9" x 9' 8"): uPVC double glazed windows to rear, built in wardrobes with hanging rail and shelving, radiator, power points.

Bathroom

Obscure uPVC double glazed window to side, fitted with a modern white suit comprising panelled bath with electric shower over and glazed shower screen, pedestal wash hand basin, low level WC, tiled walls and floor, chrome ladder style radiator.

Outside

Gardens

To the front of the property there is ample parking for motor vehicles and easy access to a converted garage/storage room. To the rear of the property there is a delightful south facing courtyard garden, with boundary hedging, shrubbery and seating area.

Council Tax & Local Authority

Cheshire East Council - Band F - 2025/2026 - £3,352.06

Deposit

5 Weeks Rent

Facebook Twitter instagram google