£895,000

Eaton Drive, Alderley Edge, Cheshire

4 3 2

A beautifully modernised and refurbished contemporary four bedroom, two bathroom detached family home situated in this popular residential location close to the village.

A beautifully modernised and refurbished contemporary four bedroom, two bathroom detached family home situated in this popular residential location close to the village.

The accommodation comprises of to the ground floor; entrance hall, WC, kitchen/breakfast room open-plan to the dining and sitting rooms, snug, office, utility room. To the first floor there is a master bedroom and en suite, three further bedrooms and a family bathroom.

Externally to the front of the property there is off-street parking for two cars and landscaped gardens to the front and rear.


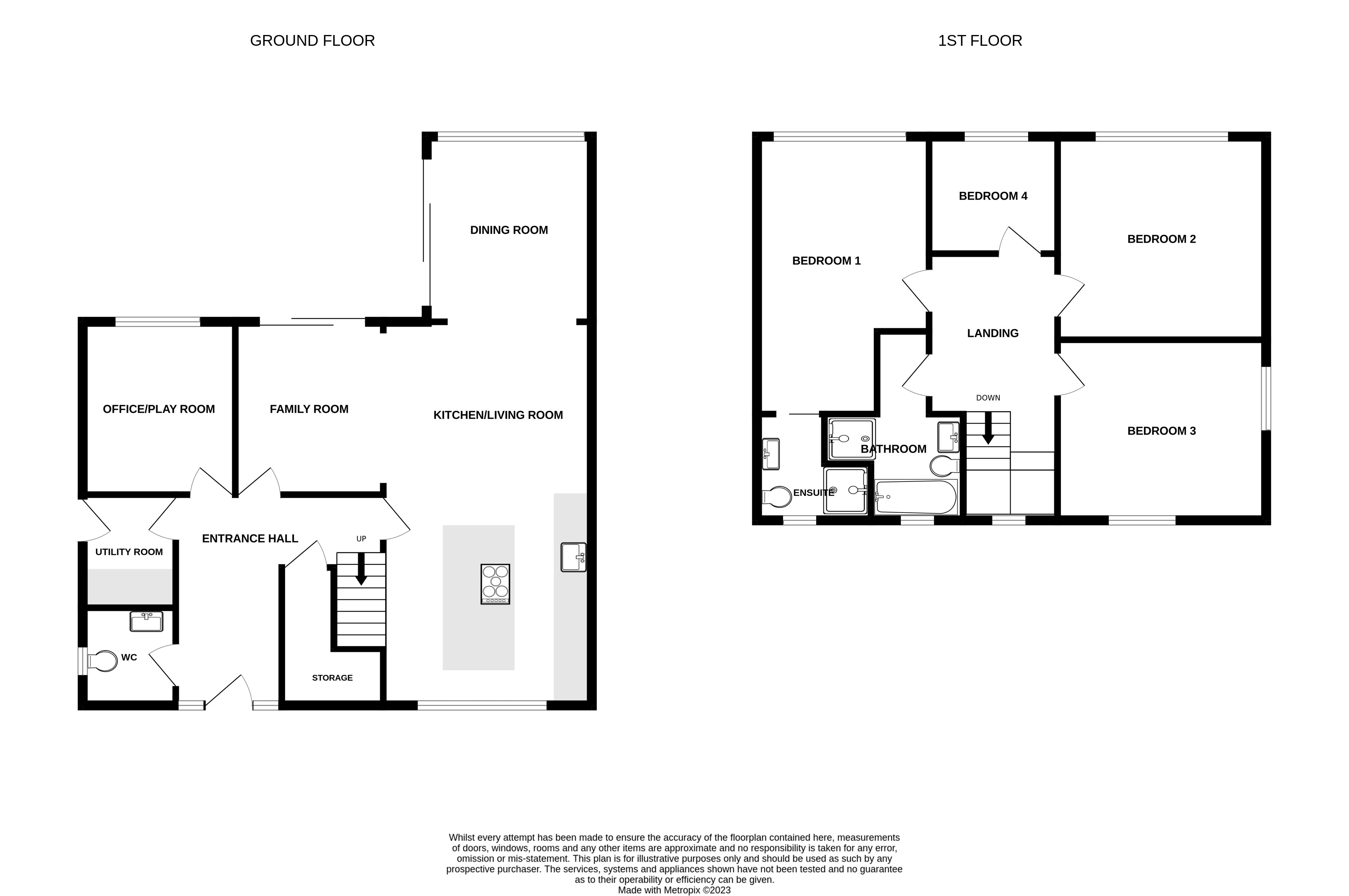
Room Dimensions

Ground Floor

Entrance Hall

3.82m x 3.77m narrowing to 1.42m (12' 6" x 12' 4" narrowing to 4'6") Composite from door with obscure glazed sidelights, down lights, brush chrome power points, radiator, stairs to first floor with understairs storage cupboard with fuse box and meters, doors of to;

Cloakroom/Wc

1.69m x 1.56m (5' 7" x 5' 1") Obscure Upvc double glazed window to side, fitted with a modern suite comprising of wall hung WC with concealed cistern, wash hand basin inset into vanity unit with drawers under, anthracite ladder style towel radiator, tiled walls and floor.

Utility Room

1.94m x 1.74m (6' 4" x 5' 9") 1.94m x 1.74m (6' 4" x 5' 9") composite door to side, cupboards housing a Worcester Boiler for domestic hot water and central heating, Storage shelving, space and plumbing for washing machine and dryer, radiator, luxury vinyl flooring.

Office/Playroom

3.13m x 2.77m (10' 3" x 9' 1") Upvc double glazed window to rear, radiator, down lights, brushed chrome power points, Tv aerial point.

Snug

3.13m x 2.83m (10' 3" x 9' 3") Double glazed sliding patio doors on to ceramic tiled patio, down lights, radiator, brush chrome power points, open to;

Open Plan Kitchen Living Room

6.78m x 3.77m (22' 3" x 12' 4") Upvc double glazed window to front, fitted with a modern range of wall and base units with stone work surfaces to smoked glass splash backs, inset stainless steel sink with Quooker tap over, built in Siemens appliances comprise of;dishwasher, two ovens, larder fridge, freezer, a central island unit houses the induction hob with some work surfaces, drawer and cupboard units and a breakfast bar area, down lights, radiator, power points. The sitting area has down lights, brush chrome power points, Tv aerial point and matching Luxury Vinyl flooring opening up to;

Dining Room

3.32m x 3m (10' 11" x 9' 10") double glazed picture window to rear, double glazed sliding doors to rear ceramic tiled patio, radiator, brushed chrome power points, down lights, luxury vinyl flooring.

First Floor

Landing

Obscure double glazed window to front, access to loft scape with pull down ladder, down lights, glazed balustrade.

Bedroom 1

4.71m x 3.38m (15' 5" x 11' 1") Upvc double glazed window to rear, radiator, brushed chrome power points, Tv aerial point.

En Suite

Obscure Upvc double glazed window to front, fitted with a modern white suite comprising of shower cubicle with glazed door and mains fed fixed head and hand held shower, low level wc, wash hand basin inset into vanity unit with drawers under, anthracite, ladder style towel radiator, tiled walls and floor, down lights, extractor fan.

Bedroom 2

3.78m x 3.63m (12' 5" x 11' 11") Upvc double glazed window to rear, radiator, brushed chrome power points, Tv aerial point.

Bedroom 3

3.78m x 3m (12' 5" x 9' 10") Upvc double glazed windows to front and side, radiator, brushed chrome power points, Tv aerial point.

Bedroom 4

2.31m x 2.11m (7' 7" x 6' 11") Upvc double glazed window to rear, radiator, brushed chrome power points.

Family Bathroom

Obscure Upvc double glazed window to front, fitted with a modern white suite comprising of tiled paneled bath, shower cubicle with glazed door and mains fed fixed head and hand held shower, low level WC, wash hand basin inset into vanity unit with drawers under, anthracite, ladder style towel radiator, tiled walls and floor, down lights, extractor fan.

Outside

Gardens

To the front of the property there is a tarmacadam drive way providing off road parking for a couple of cars. A porcelain paved pathway leads to the front door flanked by raised flower beds and a porcelain pathway leads to the gated access to the rear garden. To the rear of the property there is a porcelain paved patio with inset lighting that opens up on to the lawned garden enclosed by fencing.

Tenure

Freehold

Council Tax & Local Authority:

Cheshire East Council – Band F 2025/2026 - £3,341.64

Facebook Twitter instagram google